See aasta suvila, järgmine aasta juba kodu?
Ridakülas müüki tulnud vana rehielamu, mis on hetkel kasutatav suvilana (kehva soojapidavusega, puudub välisseintel soojustus). Hoonele on tehtud renoveerimiseks projekt, selle teostamisel saab suvilast aastaringne kodu.
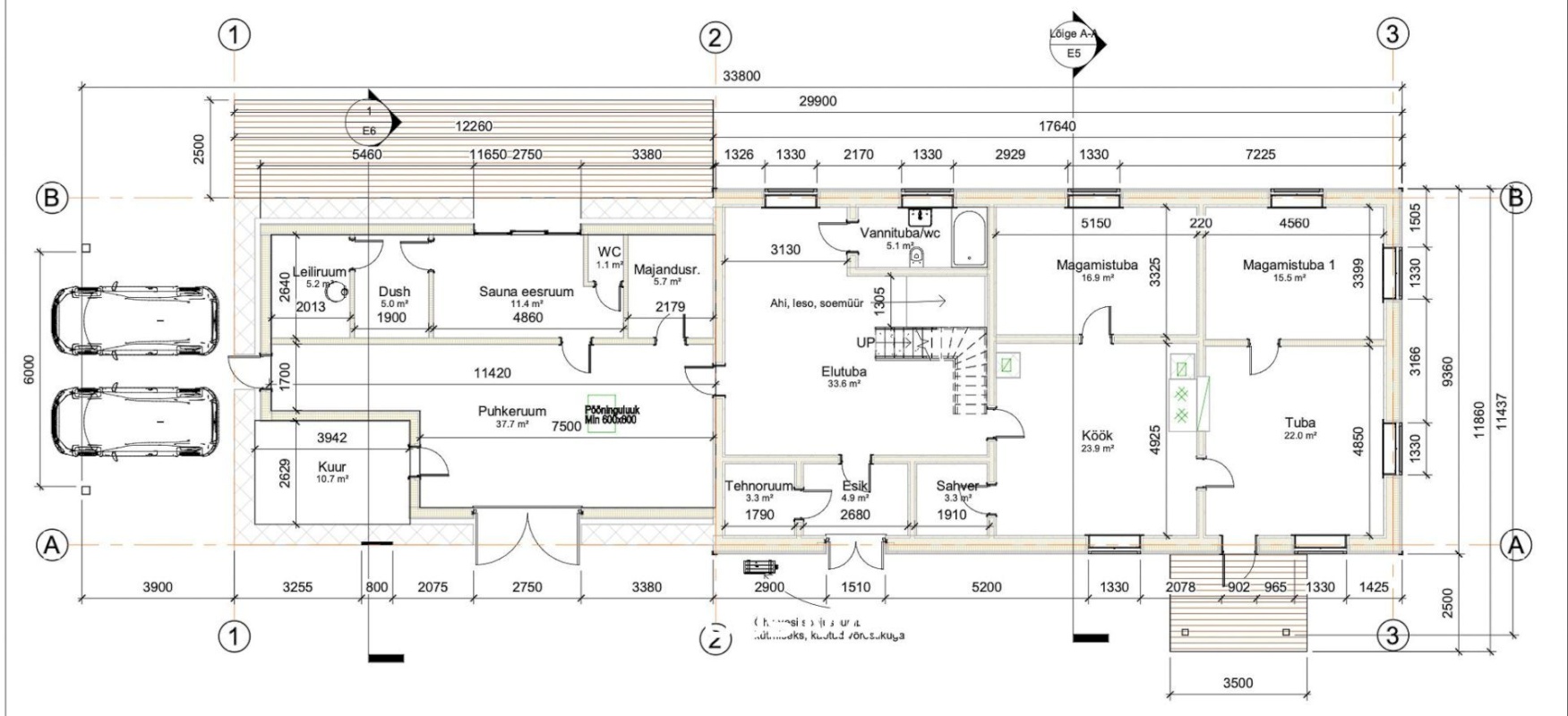
Hoone: Vanas rehielamus on tuulekoda, köök, 2 tuba, rehetuba, WC/duširuum, rehealune, panipaik, sahver, laut. Valdavalt on tehtud parendustöid, säilitades tolleaegset stiili ja materjale. Laudpõrandad on osaliselt taastatud, osaliselt asendatud uuega. Seinad palk ja maakivi, ees puitraamidel aknad. Katusekate on vahetatud 2000aastate alguses. Osa välisseina palkidest tuleks asendada. Vundamenti tuleb parendada, osaliselt uuesti teha.
Rehielamu pindala on 270,7 m2, sellest 102,2 m2 on eluruumide pind.
Elektrijuhtmestik on vahetatud. Torustik on majja veetud, kuid vajab siiski igapäevaseks elamiseks ümbertegemist, on esinenud veetorude lõhkemist külmaga – vajaduspõhiselt parandatud. Soe vesi elektriboilerist.
Vesi tuleb kinnistul asuvast salvkaevust. Reovee tarbeks on ca 15m3 kogumismahuti. Imbväljakut ei ole, küll aga projektis planeeritud.
Küte: puuküte, 1 ahi ei ole töökorras.
Elektriliitumine 220/380V, 3x40A
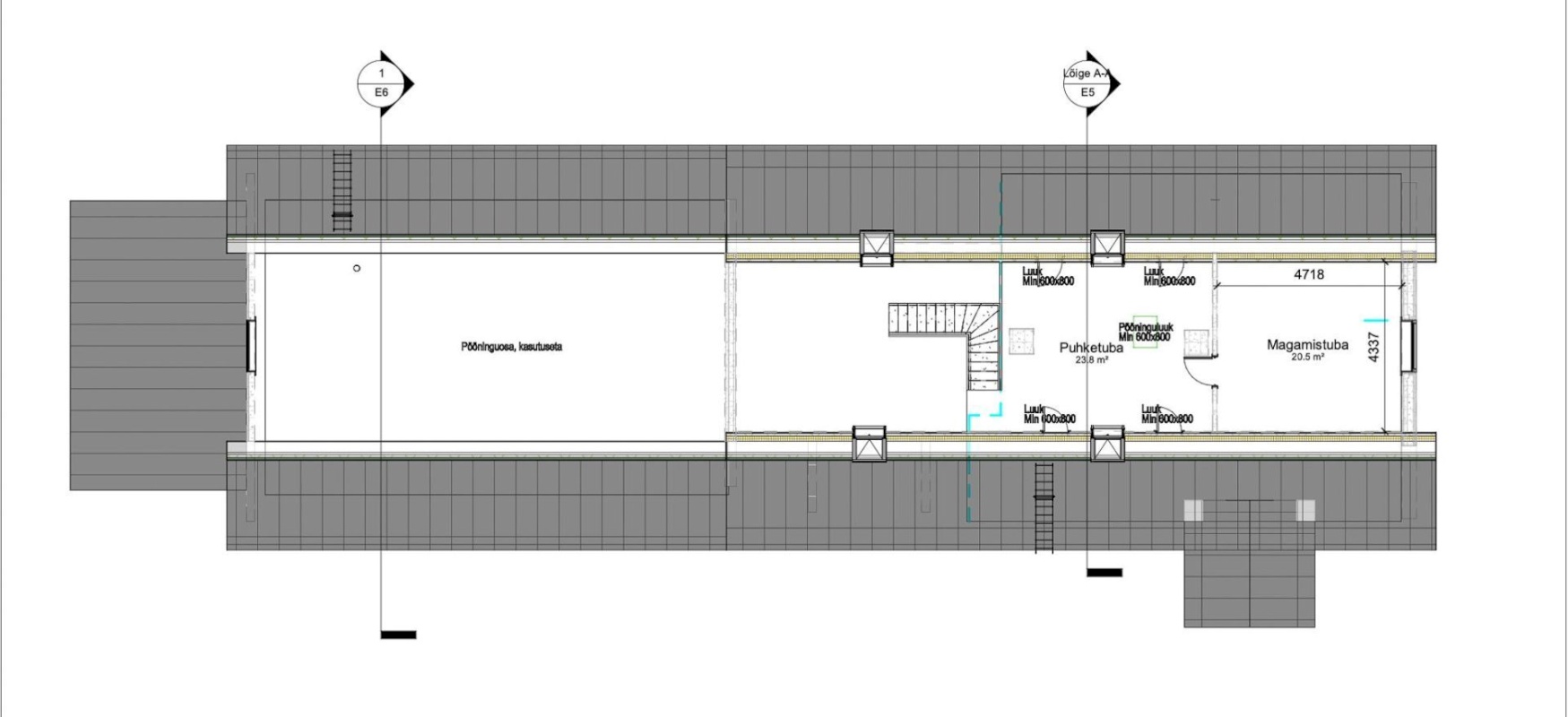
Tuleviku võimalused: Renoveerimisprojekti järgi on planeeritud majja 3 tuba, köök, elutuba, tehnoruum, pesuruum, esik, sahver, saun, sauna eesruum, puhkeruum, maj.pid. ruum, kuur. II korrusele planeeritud 1 magamistuba, puhkeruum ning pööninguala. Planeeritud on ka küttesüsteemi vahetus õhk-vesi küttele sh säilitatakse ka ahiküte. Vaata ka pildina lisatud põrandaplaane.
Projektijärgne energimärgis C. Praeguse seisu energiaklass määramata.
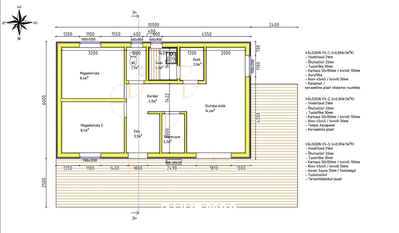
SUVEMAJA: Olemas ehitusprojekt ka suvemaja ehituseks hoovile, kuhu planeeritud 2 magamistuba, köök-elutuba, esik, wc, pesuruum, saun. – Väga hea võimalus/idee kasutada külaliste majutuseks või miks ka mitte airbnb majutusena. Vaata ka pildina lisatud põrandaplaani.
On võetud ka spetsialistilt renoveerimise nõustamise aruanne. Sisaldab detailselt kõiki vigu piltidega ning abistavate kommentaaridega renoveerimiseks.
Haljastust on jõudumööda korrastatud.
NB! Uuri ka toetuste saamise võimalusi renoveerimiseks nt kredexilt. Kadrina vallas toetuse max määr 50 000€. Kohapeal räägin sulle täpsemalt!
Tule selle 1890ndatel aastatel rajatud rehielamuga tutvuma ka kohapeale!
JAGA MINU KONTAKTI KÕIGILE, KES VAJAVAD KINNISVARANÕU!
– – – – – – – – – –
Telli hindamine UUS MAA Kinnisvarabüroolt https://uusmaa.ee/teenused/hindamine/
ning saad:
– Eksperthinnangu kuni 20% soodsamalt kui võtad koduga seotud laenu Swedbankist
– Pankadest parimad kodulaenutingimused
– Kiire, kvaliteetse ning usaldusväärse hindamisteenuse Eestis
UUS MAA KINNISVARABÜROO EKSPERTHINNANGUID AKTSEPTEERIVAD KÕIK FINANTSASUTUSED.
– – – – – – – – – –
Liitu Uus Maa uudiskirjaga ja saa homset kinnisvarainfot juba täna!
https://www.uusmaa.ee/uudiskirjagaliitumine/
– – – – – – – – – –
Kodu aitab osta Swedbank.
Pakkumise saamiseks kasuta koodi UUSMAA ja Sind teenindatakse eelisjärjekorras.
Võtame ühendust 1 tööpäeva jooksul.
Uus Maa kliendile soodsam lepingutasu. Küsi täpsemat infot maaklerilt.
Finantsteenuseid pakub Swedbank AS. Tutvu tingimustega, pea nõu.
































