Hea asukoht:
Peetri südames, aadressil Vana-Tartu maantee 49, rajab Hepsor Veski Keskuse. Suurepärane ligipääs ja hea nähtavus, otse Vana-Tartu mnt ääres. Peetri on üks Tallinna lähialade kiiremini arenevaid piirkondi, kus elab juba tuhandeid inimesi ning tegutseb arvukalt ettevõtteid. Keskuse läheduses asub bussipeatus „Veski“, kust liiguvad bussid ka Tallinna kesklinna suunal.
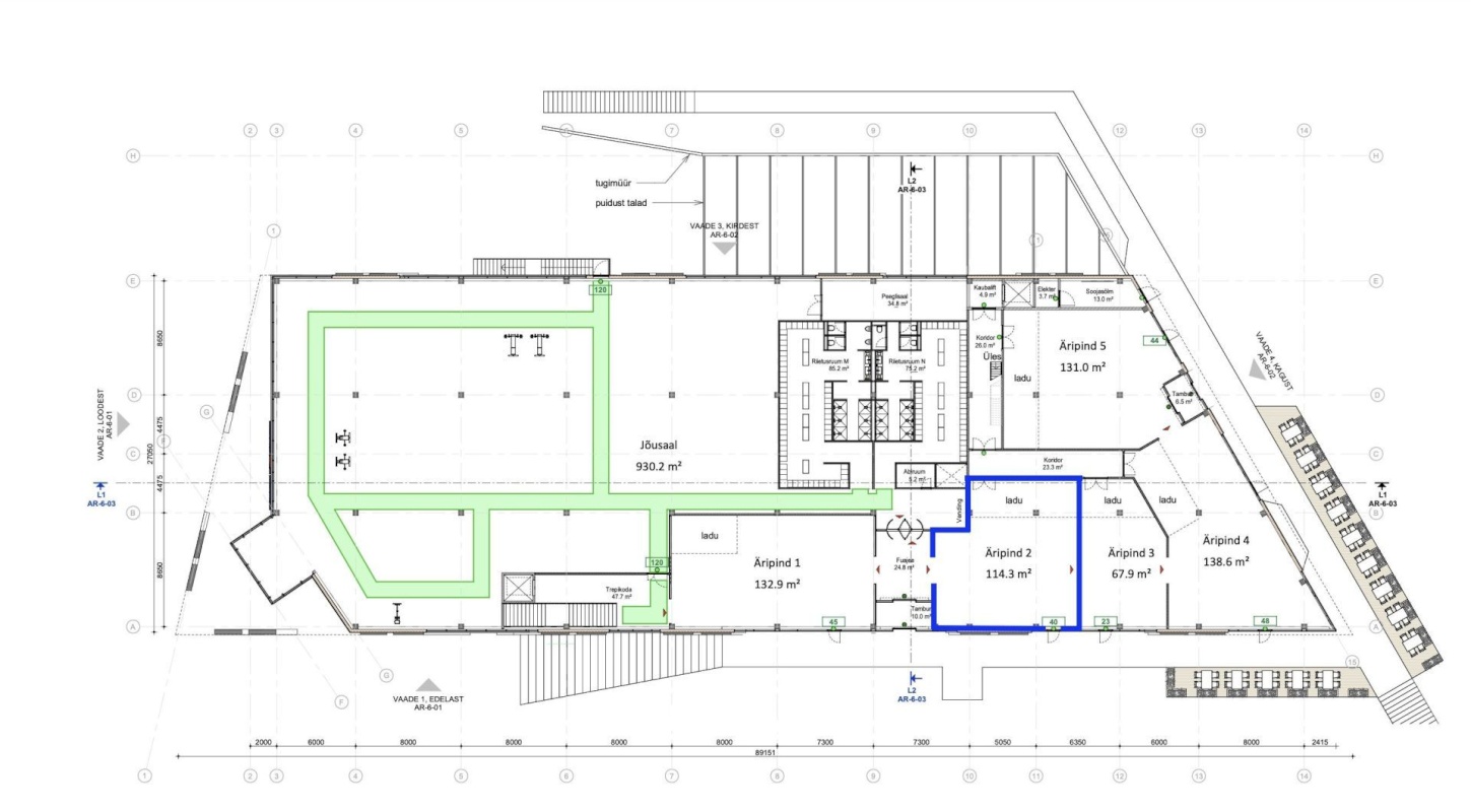
Äripinnad:
Keskuses on äripinnad erinevatele vajadustele, lahendustes võimalus hetkel veel kaasa rääkida.
Planeeritava hoone kogupindala on 3 800 m². Vabade pindade suurused jäävad vahemikku 65–350 m².
Ruumilahendusi saab kujundada vastavalt ettevõtte profiilile, sobilik nii jaekaubanduseks, teeninduseks, toitlustuseks kui ka bürooks. Võimalik on valida sobiv tsoon või nurk ning kujundada näiteks 65 m², 90 m² või kuni 350 m² suurune äripind vastavalt vajadusele.
Suurimad üürnikud:
Hoone külastatavust toetavad juba sõlmitud üürilepingud tuntud ettevõtetega nagu Maxima toidupood ja Gym! spordiklubi.
Ajakava:
Projekteerimine on täies hoos ning ehitustööde algus on planeeritud 2026. aastasse. Hoone valmimine ja avamine on kavandatud 2027. aasta suveks.
Kui otsid äripinda, mis oleks nähtav, kergesti ligipääsetav ja asuks kiiresti kasvava elamupiirkonna keskmes, on praegu õige aeg oma huvi näidata ning tagada ettevõttele sobiv asukoht.
Küsi lisainfot:
Madis Merioja
5302 3919
madis@uusmaa.ee
JAGA MINU KONTAKTI KÕIGILE, KES VAJAVAD KINNISVARANÕU!
– – – – – – – – – –
Telli hindamine UUS MAA Kinnisvarabüroolt hindamine@uusmaa.ee
UUS MAA KINNISVARABÜROO EKSPERTHINNANGUID AKTSEPTEERIVAD KÕIK FINANTSASUTUSED.
– – – – – – – – – –
Liitu Uus Maa uudiskirjaga ja saa homset kinnisvarainfot juba täna!
https://www.uusmaa.ee/uudiskirjagaliitumine/
– – – – – – – – – –
Kodu aitab osta Swedbank.
Pakkumise saamiseks kasuta koodi UUSMAA ja Sind teenindatakse eelisjärjekorras.
Võtame ühendust 1 tööpäeva jooksul.
Uus Maa kliendile soodsam lepingutasu. Küsi täpsemat infot maaklerilt.
Finantsteenuseid pakub Swedbank AS. Tutvu tingimustega, pea nõu.








