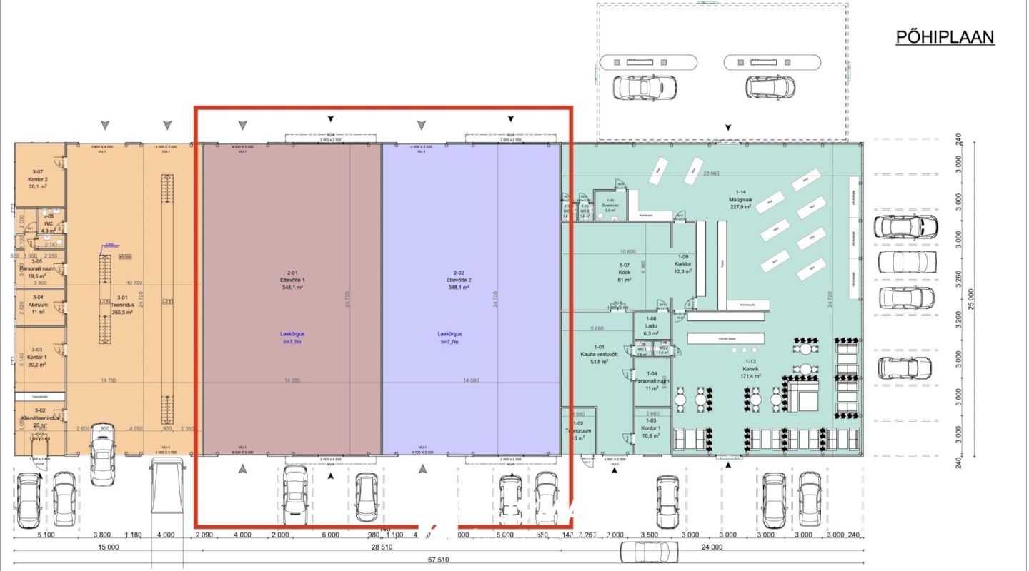
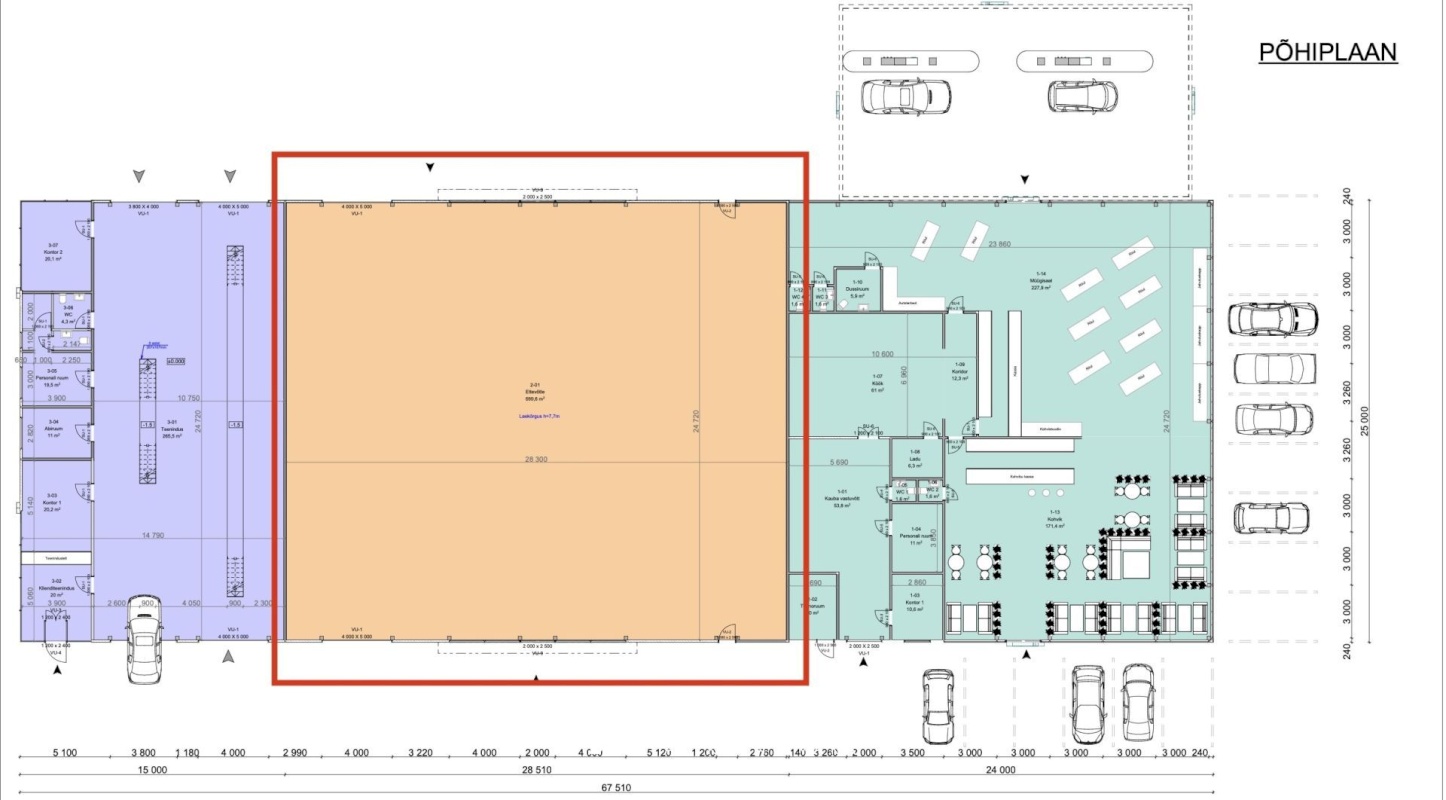
Üürile anda 700 m² suurune kaubanduspind, mida on võimalik paindlikult jaotada ka kaheks eraldi pinnaks (2 × 350 m²).
Hoone paikneb silmapaistvas ja mugavalt ligipääsetavas asukohas Kohtla-Järve peatänava ääres, tagades suure nähtavuse ja hea kliendivoo.
Parkimisvõimalusi on rohkelt nii hoone ees kui ka taga. Lähiümbruses asuvad Terminali tankla ja tehnoülevaatus, mis toetavad täiendavat külastatavust.
Naabriteks Terminali tankla ja tehnoülevaatus.
Erilahendused on võimalikud vastavalt üürniku soovidele, võimaldades ruumid kohandada konkreetsele ärikontseptsioonile.
Tundes huvi antud pakkumiste vastu, palun Teil võtta ühendust: Fred Linnukütt / fred@uusmaa.ee / 5347 2228
Jaga minu kontakti kõigile, kes vajavad kinnisvaranõu!
Liitu meie uudiskirjaga ja saa homset kinnisvarainfot juba täna! Vaata https://arikinnisvara.uusmaa.ee
UUS MAA ÄRIKINNISVARA – aastakümned kogemust ja klientide usaldust, läbimõeldud täisteenus ja suurim arv eksperte: vahendamine, hindamine, haldamine, nõustamine ja investeerimine.






