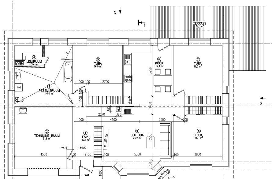
Müüa heas seisukorras elamu suurel krundil, asub rahulikus ja turvalises piirkonnas, kus rohelust ja loodust on igal sammul.
Tegemist on endale ehitatud elamuga, mille välisseinad on laotud Bauroc Ecoterm 375 plokkidest. Elamus on maaküte ja soojustagastusega ventilatsioon, mis tagab soojuse ja energiatõhususe. Sobib ideaalselt peredele, kes hindavad rahu, privaatsust ja looduse lähedust.
Objekti omadused:
• Maaküte ja soojustagastusega ventilatsioon
• Suur ja hooldatud krunt
• Heas seisukorras elamu
• Roheline ja rahulik elukeskkond
• Turvaline asukoht
Uutel omanikel on võimalus kaasa rääkida ka siseviimistluses!
Omanik teostab enne maja üleandmist järgmised tööd:
– uued põrandad
– liistud
– lae ja seinte värskendamine
– uued siseuksed
– värskendustööd garaažis
Helista ja küsi rohkem infot või broneeri aeg objekti vaatamiseks!
JAGA MINU KONTAKTI KÕIGILE, KES VAJAVAD KINNISVARANÕU!
– – – – – – – – – –
Telli hindamine UUS MAA Kinnisvarabüroolt https://uusmaa.ee/teenused/hindamine/
ning saad:
– Eksperthinnangu kuni 20% soodsamalt kui võtad koduga seotud laenu Swedbankist
– Pankadest parimad kodulaenutingimused
– Kiire, kvaliteetse ning usaldusväärse hindamisteenuse Eestis
UUS MAA KINNISVARABÜROO EKSPERTHINNANGUID AKTSEPTEERIVAD KÕIK FINANTSASUTUSED.
– – – – – – – – – –
Liitu Uus Maa uudiskirjaga ja saa homset kinnisvarainfot juba täna!
https://www.uusmaa.ee/uudiskirjagaliitumine/
– – – – – – – – – –
Kodu aitab osta Swedbank.
Pakkumise saamiseks kasuta koodi UUSMAA ja Sind teenindatakse eelisjärjekorras.
Võtame ühendust 1 tööpäeva jooksul.
Uus Maa kliendile soodsam lepingutasu. Küsi täpsemat infot maaklerilt.
Finantsteenuseid pakub Swedbank AS. Tutvu tingimustega, pea nõu.



































