Üürile anda põhjalikult renoveeritud 4-toaline maja rahulikus Tiskre elurajoonis.
Maja on täielikult renoveeritud. Paigaldatud on uus küttesüsteem (õhk-vesi soojuspump, vesipõrandaküte) ning uus ventilatsioonisüsteem.
Kommunaalkuludeks on elekter ja vesi vastavalt tarbimisele, prügivedu, Telia internet ning G4S valveteenus. Ei lisandu mingeid halduskulusid, remondifondi ega laenusid.
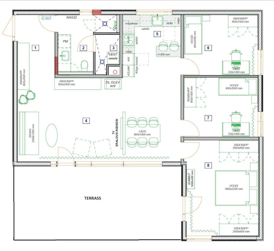
PLANEERING on läbi mõeldud ja mugav:
• avar elutuba koos väljapääsuga lõunapoolsele terrassile,
• köök koos kvaliteetse mööbli ja tehnikaga,
• kolm magamistuba,
• avar dušširuum ja tualett,
• esik garderoobikapiga (kapid tellitud ja paigaldatakse enne sissekolimist).
Lisaks on piltidel puudu veel elutoa seinkapp/raamaturiiul. Suurde magamistuppa on tellitud kaks riidekappi (vaata maja plaani). Tubades on olemas valgustid ja kardinad. Lahtise mööbli (diivan, voodid, söögi- ja kirjutuslauad) saab üürnik ise tuua.
Maja ees asub autovarjualune, kust on mugav autost asju tuppa kanda ja kuiva jalaga siseruumidesse pääseda. Lisaks kuur/panipaik.
Elamut ümbritseb aiaga piiratud kinnistu, mis on varustatud puldist avatava autovärava ja eraldi jalgväravaga.
TEHNILISED ANDMED ja mugavused:
• Küte: õhk-vesi soojuspump/põrandaküte ja soojustsalvestav tulikivi ahi
• Ventilatsioon: soojustagastusega ventilatsioon
• Internet: Telia
• Valvesüsteem: G4S
• Terrass: avar, lõunapoolne
• Parkimine: autovarjualune ja lisaks ruumi mitmele autole õues
• Kuur: terrassimööbli, autorehvide, spordivarustuse jne. hoiustamiseks.
• Aed: 1275 m², hooldatud, ümbritsetud elupuuhekiga
ASUKOHT ja ümbrus:
Maja asub vaikses ja turvalises Tiskre piirkonnas, Roolahe tänaval. Hea ühistranspordi liiklus.
• Bussipeatus 250m kaugusel elamurajooni sees
• Läheduses Tiskre Prisma
• Ca kilomeetri kaugusel asub Tabasalu keskus, kus on lasteaed, spordikeskused, iluteenused, kauplused ning söögikohad
• Mõnesaja meetri kaugusel matkarada ja meri
TINGIMUSED:
Üür: 2200€ / kuu + kommunaalkulud
Tagatisraha: 1 kuu üür
Lepingu sõlmimise tasu: 1 kuu üür
Leping: vähemalt 12 kuud
Kui tekkis küsimusi või soovid koha peal majaga tutvuda, siis võta julgesti ühendust!
Maja on koheselt vaba.
JAGA MINU KONTAKTI KÕIGILE, KES VAJAVAD KINNISVARANÕU!
– – – – – – – – – –
Telli hindamine UUS MAA Kinnisvarabüroolt https://uusmaa.ee/teenused/hindamine/
ning saad:
– Eksperthinnangu kuni 20% soodsamalt kui võtad koduga seotud laenu Swedbankist
– Pankadest parimad kodulaenutingimused
– Kiire, kvaliteetse ning usaldusväärse hindamisteenuse Eestis
UUS MAA KINNISVARABÜROO EKSPERTHINNANGUID AKTSEPTEERIVAD KÕIK FINANTSASUTUSED.
– – – – – – – – – –
Liitu Uus Maa uudiskirjaga ja saa homset kinnisvarainfot juba täna!
https://www.uusmaa.ee/uudiskirjagaliitumine/
– – – – – – – – – –
Kodu aitab osta Swedbank.
Pakkumise saamiseks kasuta koodi UUSMAA ja Sind teenindatakse eelisjärjekorras.
Võtame ühendust 1 tööpäeva jooksul.
Uus Maa kliendile soodsam lepingutasu. Küsi täpsemat infot maaklerilt.
Finantsteenuseid pakub Swedbank AS. Tutvu tingimustega, pea nõu.
























