Müüa uued, ehitamisjärgus paarismaja boksid Keilas, Suve tänaval. Planeeritud valmimine 2026.a. Kevad.
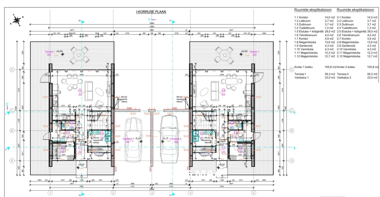
Esimesel tasapinnal tervitab mugav ja valgusküllane sissepääsuala, kust liikumine kulgeb sujuvalt elutuppa koos köögiga (28,0 m²). Siit avaneb otsepääs suurele, 59,3 m² terrassile. Esimese korruse mugavuspaketti kuulub ka kompaktne, ent läbimõeldud sauna-tsoon: leiliruum (3,7 m²), duširuum (3,7 m²) ja eraldi tualett (1,3 m²). Tehniline ruum (4,0 m²) hoiab korras kogu maja tehnosüsteemid ning annab lisaruumi majapidamiseks. Esik-koridor (14,0 m²). Mugavakas autohoidmiseks on Varikatus suurusega 23,0 m²
Teise korruse südameks on mugav master-magamistuba (13,6 m²) oma garderoobiga (4,3 m²). Lisaks on kaks hubast lastetuba (12,3 m² ja 12,7 m²) ning pere vannituba/wc (4,3 m²). Korruseid ühendab kompaktne koridor/hall (3,9 m²), mis seob ruumid tervikuks ega raiska pinda. Planeering on tasakaalus: päevaste tegevuste ja külaliste vastuvõtuks on ruumikas esimesi korrus, samal ajal kui teisel korrusel on rahulik ja privaatne puhkeala.
Müügis on:
Korter nr 1 – 105,8 m², sh tehnoruum 4 m2, lisandub terass
Korter nr 2 – 105,8 m², sh tehnoruum 4 m2, lisandub terass
Hoone on ehitatud plaatvundamendile koos radoonitõkkekile kaitsega. Välisseinte soojustust on 250mm villa, katus soojustatud 400mm villagaa. Kõik aknad on kolmekordse klaaspaketiga ja alumiiniumraamidega. Boksidesse on paigaldatud innovaatiline Zehnderi tooteseeria ComfoAir Q450 TR Energia- ja niiskustagastusega ventialtsioonisede. Iga boksi kasutusele paigaldatakse päikesepaneelid. Küttesüsteem õhk-vesi soojuspumba baasil – vesipõrandaküte nii I kui II korrusel.
Päikesepaneelid, hea soojustust, soojapidavad aknad ning õhk-vesi soojuspump tagab majale madalad kütekulud. Energiamärgis “A”
Piisavalt varajases etapis ostes saab valida viimistlusmaterjale. Pildid ja graafilised materjalid on illustratiivse tähendusega ning võivad sisaldada ebatäpsusi.
Hind sisaldab kinnistu heakorda: pinnase tasandamine ja muruseemne külv. Sissesõit ja parkimiskohad rajatakse tasandatud killustikust.
Tsentraalne vee- ja kanalisatsioonivõrk, elektri peakaitse 3×16 A. Kiire andmeside Telia valguskaabliga.
Keila Jõepargi elamurajoon paikneb linna kaguservas – rahulik roheala, uued tänavad koos valgustuse ja kergliiklusteedega ning hästi läbi mõeldud elukeskkond. Looduslähedus ja privaatsus on ühendatud mugava ligipääsuga Keila teenustele ning Tallinna suunalisele liiklusele.
Igapäevaeluks on kõik käe-jälje kaugusel: mitmed toidupoed ja teenindusasutused, söögikohad, spordi- ja terviserajad, kultuuri- ja haridusasutused (koolid, lasteaiad, muusikakool), spordiklubid ning Keila kaunis Keskpark.
Keilast väljub Tallinna suunal tihe rongigraafik. Laagri peatusesse jõuab rong ca 12–13 min ning Tallinna südalinna u 33–34 min. Läheduses on ka Eha ja Ülesõidu bussipeatused.
 
JAGA MINU KONTAKTI KÕIGILE, KES VAJAVAD KINNISVARANÕU!
– – – – – – – – – –
Telli hindamine UUS MAA Kinnisvarabüroolt https://uusmaa.ee/teenused/hindamine/
ning saad:
– Eksperthinnangu kuni 20% soodsamalt kui võtad koduga seotud laenu Swedbankist
– Pankadest parimad kodulaenutingimused
– Kiire, kvaliteetse ning usaldusväärse hindamisteenuse Eestis
UUS MAA KINNISVARABÜROO EKSPERTHINNANGUID AKTSEPTEERIVAD KÕIK FINANTSASUTUSED.
– – – – – – – – – –
Liitu Uus Maa uudiskirjaga ja saa homset kinnisvarainfot juba täna!
https://www.uusmaa.ee/uudiskirjagaliitumine/
– – – – – – – – – –
Kodu aitab osta Swedbank.
Pakkumise saamiseks kasuta koodi UUSMAA ja Sind teenindatakse eelisjärjekorras.
Võtame ühendust 1 tööpäeva jooksul.
Uus Maa kliendile soodsam lepingutasu. Küsi täpsemat infot maaklerilt.
Finantsteenuseid pakub Swedbank AS. Tutvu tingimustega, pea nõu.
 
										 
													 
													















