Tallinn, Vanalinn, Pikk 57
Apartment




























Цена
1 400 €
Цена за м2
11,23 €/m2
Дополнительная информация
Расположение
Адрес: Pikk 57, Vanalinn, Tallinn, Harju maakond
Данные
ID: 24804 / 261651
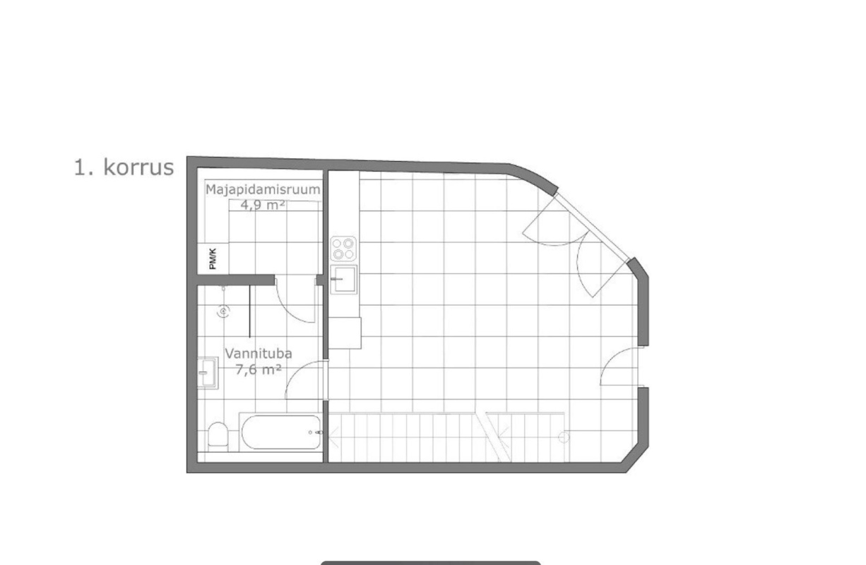
Area size: 124.70 m2
Кол-во комнат: 2
No. of WC's: 2
Кол-во гостиных: 1
Кол-во спален: 1
Кол-во ванных: 1
No. of kitchens: 1
Год: 1377
Roof: Terne plate
Собственность: Apartment ownership
Энергетическая этикетка: Сертификата нет
Cadastral number: 78401:101:1280
Материал здания: Камень
Heating: Центральное отопление
Floor number / Number of floors: 1 / 3
Характеристики
- fonolukk
- alarm
- shower
- bathtub
- камин
- furniture
- furnitureChangePossibility
- kitchen
- refrigerator
- urbanwater
- closedcourtyard
- openkitchen
- organisationthroughfewfloors
- roofapartment
- separateentrance