Продаётся дом с характером рядом с мызой Маарду, в деревне Маарду (волость Йыэляхтме) — участок почти 2 га, к дому ведёт круглогодично обслуживаемая волостью дорога. До центра Таллина, в зависимости от трафика, около 20–25 минут; новая развязка Вяо и магистраль Лаагна делают поездку безпробочной. Повседневная инфраструктура поблизости: Лоо ~5 км и Костивере ~6 км (магазины, школа, детские сады, аптека, библиотека и др.). У большой дороги останавливается школьный автобус (в сторону Лооской гимназии), еду можно заказывать через Bolt/Wolt. До пляжей Кабернеэме и Ихасалу примерно 15 минут на автомобиле; до пеших и спортивных трасс в Аэгвиду — 35–40 минут.
Расположение дома обеспечивает редкую тишину и приватность: с одной стороны сосед примерно в 200 м, с прочих сторон — поля. Примерно гектар дворовой территории косит робот-газонокосилка Husqvarna; места достаточно и для детских игр, и для сада с плодово-ягодными культурами (яблони, груши, сливы, вишни, малина, ежевика, чёрная смородина). Новому владельцу остаются газонокосилка, снегоуборщик, полный комплект садового инструмента и купель-баня. Территория ограждена, установлены автоматические ворота.
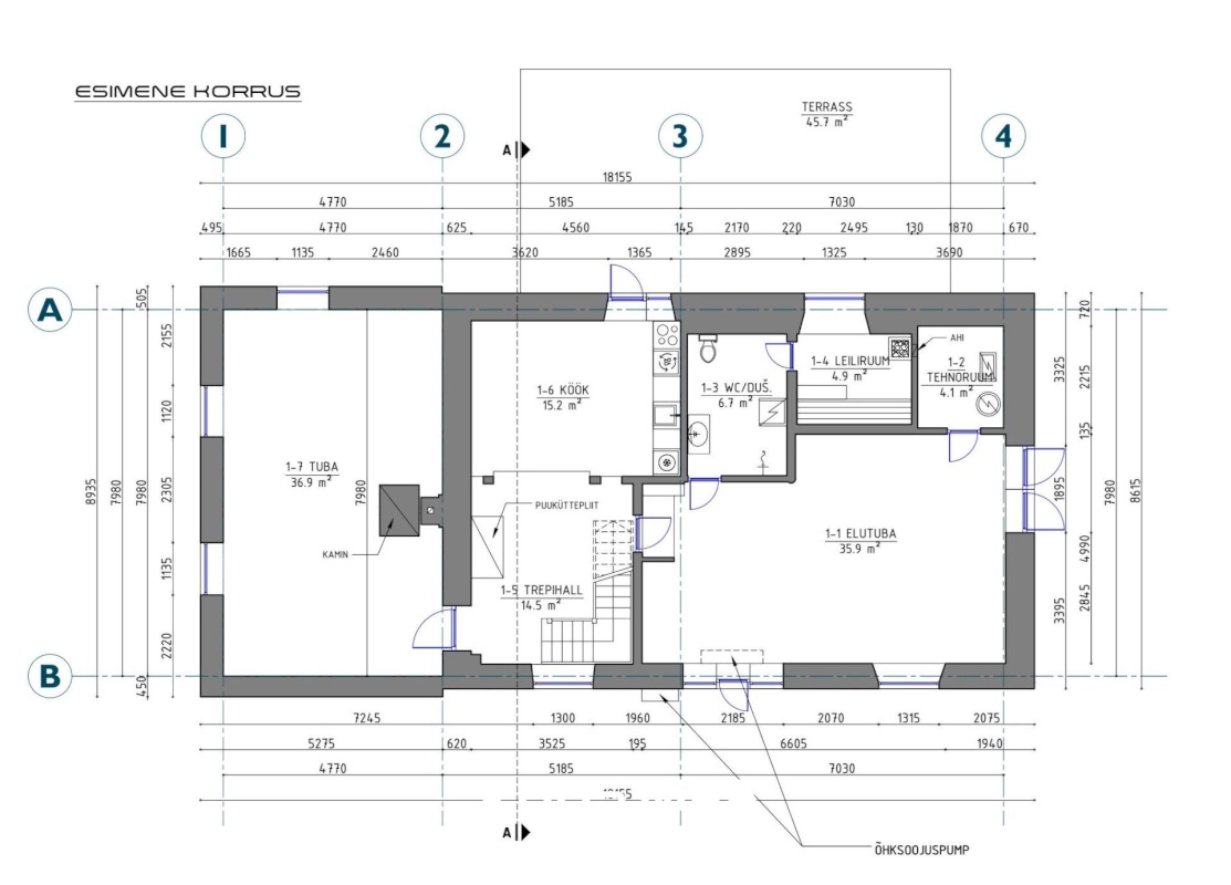
Закрытая нетто-площадь дома — 188,5 м², разрешение на эксплуатацию имеется. Первоначально здание построено в 1934 г., в 2010 г. выполнена капитальная реставрация; около 6 лет назад надстроен верхний этаж, а около 2 лет назад полностью обновлены интерьеры, включая обе ванные комнаты и кухню. Стены окрашены натуральной меловой краской. Внешние стены частично из бута частично издерева, несущие конструкции второго этажа — деревянные перекрытия. Фасад оштукатурен. Окна качественные, деревянно-алюминиевые с двойным остеклением; на верхнем этаже дополнительно мансардные окна. Напольные покрытия — преимущественно досчатый паркет; прихожая, кухня и мокрые помещения облицованы плиткой.
Планировка продуманная и светлая. На первом этаже — прихожая, объединённая с просторной гостиной/дневной зоной; кладовая/техпомещение; обновлённая ванная комната с тёплым полом, душем и подсобной зоной (стиральная и сушильная машины); отдельная южная гостиная/столовая. Кухня выполнена в стиле уютного загородного дома: использована ручная керамическая плитка Muttina и техника Smeg (индукционная плита на 5 зон и три духовых шкафа, посудомоечная машина, вытяжка) и большой холодильник LG side-by-side; из кухни — выход на солнечную террасу.
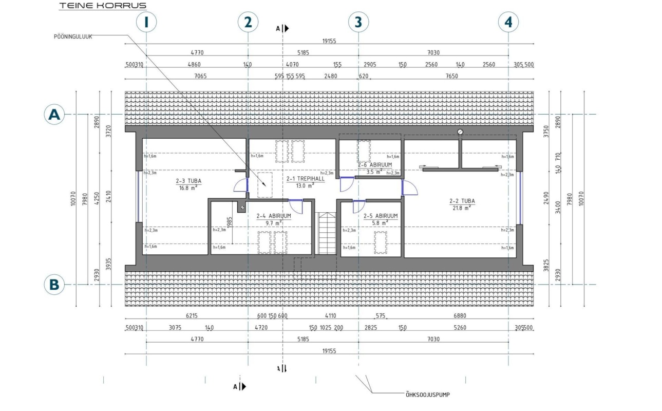
На втором этаже расположены три просторные спальни, компактный кабинет/гостевая и вторая ванная комната с эффектной каменной ванной. В фронтонных спальнях — почти панорамные окна от пола, открывающие вид на природу; в самой большой спальне — два встроенных гардероба. Подкровельные зоны рационально использованы под хранение — суммарно около 30 м².
Инженерия надёжная и экономичная: геотермальный тепловой насос Nibe питает радиаторы на первом этаже и водяной тёплый пол на втором; дополнительное тепло даeт дровяная плита. Для летнего охлаждения установлен воздушный тепловой насос (кондиционирование). В мокрых помещениях — регулируемая вытяжка, в жилых — приточные клапаны либо естественная вентиляция. Вода — из собственного колодца, канализация — локальная. Установлена охранная сигнализация.
Этот дом подойдёт семье, которая ценит пространство, зелень и полную приватность, но хочет сохранить быстрые связи с городом: природа вокруг, а всё необходимое для жизни — удивительно близко.















































































